房屋資料
案名 松山區 南京東路五段 【愛琴海大廈】捷運南京三民站 案號 114司執平17810 114/12/11(四)9:30撤回
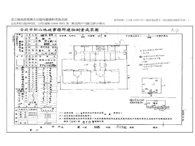
地址 台北市松山區南京東路五段40號8樓-4社區/大樓愛琴海大廈
最新交易狀態議價中售價
1650萬
房屋類型 大樓 總登記坪數 13.87 坪
格局0房屋齡35年
每坪單價118.96萬/坪公設比
車位座向
無障礙環境法拍屋 本物件是法拍屋
拍次 : 第一拍 點交
開標日期 : 2025/12/11(四) 09:30 撤回
建物所在樓層8樓/共19樓管理費
管委會中庭
電梯 是否為凶宅
300公尺內嫌惡設施 面前道路
面寬 縱深
邊間房屋銷售來源不動產經紀人/專業仲介
房屋特色

【法院筆錄內容】



1‧3686建號由債務人及其家屬自住,故拍定後點交。



《損害賠償》






【保證金】

330萬


【拍賣履歴】

一拍2025/12/11撤回底標價格1650萬

二拍底標價格1320萬

三拍底標價格1056萬

四拍底標價格844.8萬



【焦點法拍履歴】

👩🏻‍⚖️從業二十年以上經驗|競競業業|正派經營

🎯投標準備⇥法拍流程說明|標單填寫|案件現場勘查有無特殊情事|成本評估分析

💰銀行貸款⇥法拍物件估價|投標人財力評估|銀行代墊款協助辦理|最高八成

🏡拍定得標⇥強制執行書狀、履勘陳報書狀往返|債務人搬遷協商|遺留物造冊查估

🎁委託代標⇥免費|委託代標未得標⇥免費



🏢鑫創資產管理有限公司

顏麗杏0911-965339營業員證號:(101)登字第212862號

連真甄0909-031993營業員證號:(101)登字第192002號

更多物件☞焦點法拍



經紀人李彥槿:109北市經證字第02110號

坪數說明
建物登記總坪數13.87土地登記總坪數1.14
主建物坪數9.70停車位坪數
附屬建物坪數1.31公共設施坪數2.86
增建坪數
周邊環境
生活機能鄰近交通
鄰近地標公園綠地
鄰近學區捷運站南京三民
房屋聯絡人資訊
聯絡人姓名小顏
(煩請告知聯絡人,您是在889房屋網看到這則廣告,真摯感恩您的幫忙)
手機
0911-965-339(小顏)
電子信箱leysen137@gmail.com
Skype通話 Line加入好友 Line加入好友
所屬公司名稱鑫創資產管理有限公司
公司電話公司傳真
公司地址新北市新莊區中環路二段423號一樓
網 址http://www.1314home.tw

贊助商廣告
台北市松山法拍大樓
松山大樓法拍-1
松山大樓法拍-1
松山大樓法拍-2
松山大樓法拍-2
松山大樓法拍-3
松山大樓法拍-3
松山大樓法拍-4
松山大樓法拍-4
松山大樓法拍-5
松山大樓法拍-5
松山大樓法拍-6
松山大樓法拍-6
觀看地圖
黃金熱銷物件
相似物件

物件留言
請注意,如果您詢問的內容與物件不相符合或是廣告,經過審核,系統將會直接刪除您的發問內容
等待圖示
檢舉不實
等待圖示
●電話:07-7963288  ●電子信箱:服務信箱

本網站保留一切權利,非經正式書面同意,禁止轉貼節錄。建議瀏覽解析度1024*768。